Caracteristici tehnice
Brand
FERRUM
Contur extern
нержавеющая сталь
Culoare
Argintiu.
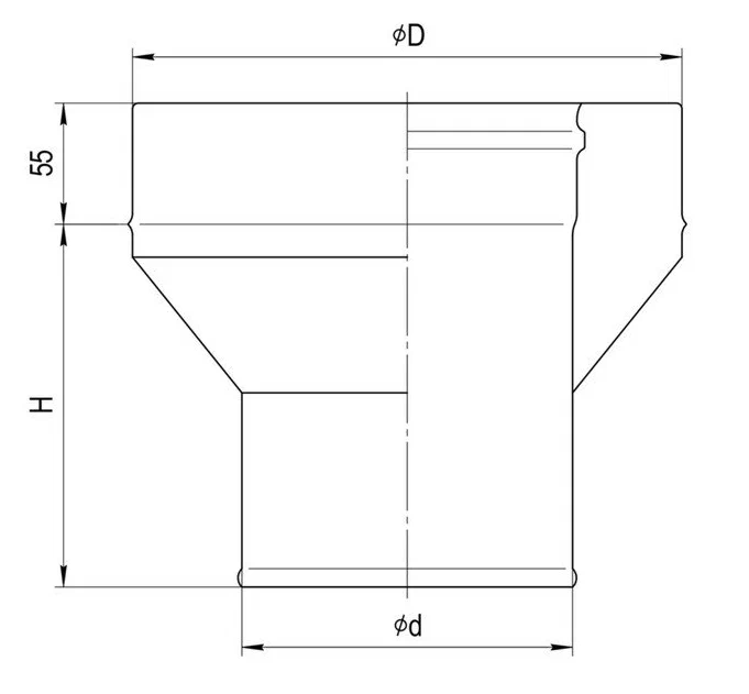
Diametrul conturului exterior
200
Diametrul conturului interior
150
Diametrul coșului de fum
150, 200
Element coș de fum
переход, адаптер
Greutatea
0,87
Grosimea oțelului
0,5
Grosimea tevii din interior
0,5
Grosimea tevii exterior
0,5
Inaltimea
15,9
cm
Marcă de oțel
AISI 430
Materialul coșului de fum
нержавеющая сталь
Scop
pentru sobe de saună, pentru sobe de încălzire
Țara de origine
RUSIA
Temperatura de functionare
450
Tipul coșului de fum
одностенный (моно), двустенный (сэндвич)
Tipul de combustibil recomandat
Lemne
Tipul de sudură
лазерная (встык)
Utilizare
pentru sistemele de evacuare a fumului
Denumire în limba română
Racord de trecere cos de fum Ferrum (430/0,5) D150х210
Cumpără Адаптер стартовый для дымохода Ferrum (430/0,5) D150х210 Codul produsului:f0308
Бренд FERRUM, Наименование румынское Racord de trecere cos de fum Ferrum (430/0,5) D150х210
Conectează-te ca să te putem notifica când primești un răspuns



